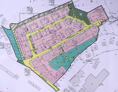
Wohngebiet am Ohrsberg rückt näher (Repro: Hubert Richter)(hr) Ohne wesentliche Änderungen geht der Entwurf für den neuen Bebauungsplan Nr. 83 "Wolfsacker" in die nächste Offenlage. Gestern fasste der Eberbacher Gemeinderat Beschlüsse zu den Stellungnahmen der Behörden und zu den Ergebnissen der Bürgerbeteiligung.
Rund 2,8 Hektar groß soll das Baugebiet am südlichen Fuß des Ohrsbergs werden. Nach der erforderlichen Neuordnung der Grundstücke im Wege eines Umlegungsverfahrens (wir berichteten) sollen dort insgesamt 26 Einzelhäuser und vier Doppelhäuser Platz finden. Die Grundstücksgrößen für die Einzelhäuser sollen auf etwa 600 Quadratmeter zugeschnitten werden. Nach den geplanten Festsetzungen im Bebauungsplan sind grundsätzlich zwei Vollgeschosse möglich.
Die Erschließung des Gebiets ist von der Güterbahnhofstraße über den Panoramaweg und dann auf einer Ringstraße geplant. Zusätzlich sind Fußwege vorgesehen, die unter anderem zu den Grünflächen oberhalb des Schafwiesenweges führen.
Für die Erschließungsstraßen ist meist eine Breite von 5,50 Metern geplant. Der Panoramaweg soll hierfür ausgebaut und mit einer talseitigen Stützmauer versehen werden.
Im Oktober 2006 hatte der Gemeinderat den Vorentwurf für den Bebauungsplan verabschiedet (wir berichteten), nachdem der Aufstellungsbeschluss bereits im Jahr 2004 gefallen war. Die Bürgerbeteiligung wurde Ende 2006/Anfang 2007 durchgeführt. Dabei gingen Anregungen vom NABU Eberbach und von zwei Privatpersonen ein, die in zwei Fällen Naturschutzaspekte betrafen und in einem Fall zum Verzicht auf eine Fußwegverbindung zwischen Panoramarundweg und Ringstraße führten. Weitere Anregungen betrafen das Umlegungsverfahren.
Im Juli 2008 wurden die betroffenen Behörden um Stellungnahmen zu dem Planentwurf gebeten. Diese führten unter anderem zu einer geringfügigen Ausweitung des Plangebietes um einen 30 Meter breiten Streifen Grünlands und zu einer Erhöhung der Anzahl öffentlicher Stellplätze im Baugebiet.
Mit zwei Gegenstimmen (AGL) wurde der geänderte Planentwurf beschlossen. Er soll demnächst einen Monat lang öffentlich ausgelegt werden. Sofern dann neue Anregungen und Stellungnahmen eingehen, wird der Gemeinderat erneut darüber entscheiden. Am Ende des Verfahrens steht dann der Satzungsbeschluss und das Inkrafttreten des neuen Bebauungsplans. Es ist vorgesehen, das Verfahren "Wolfsacker" zeitgleich mit dem benachbarten "Schafacker" weiterzuführen.
27.03.09
|